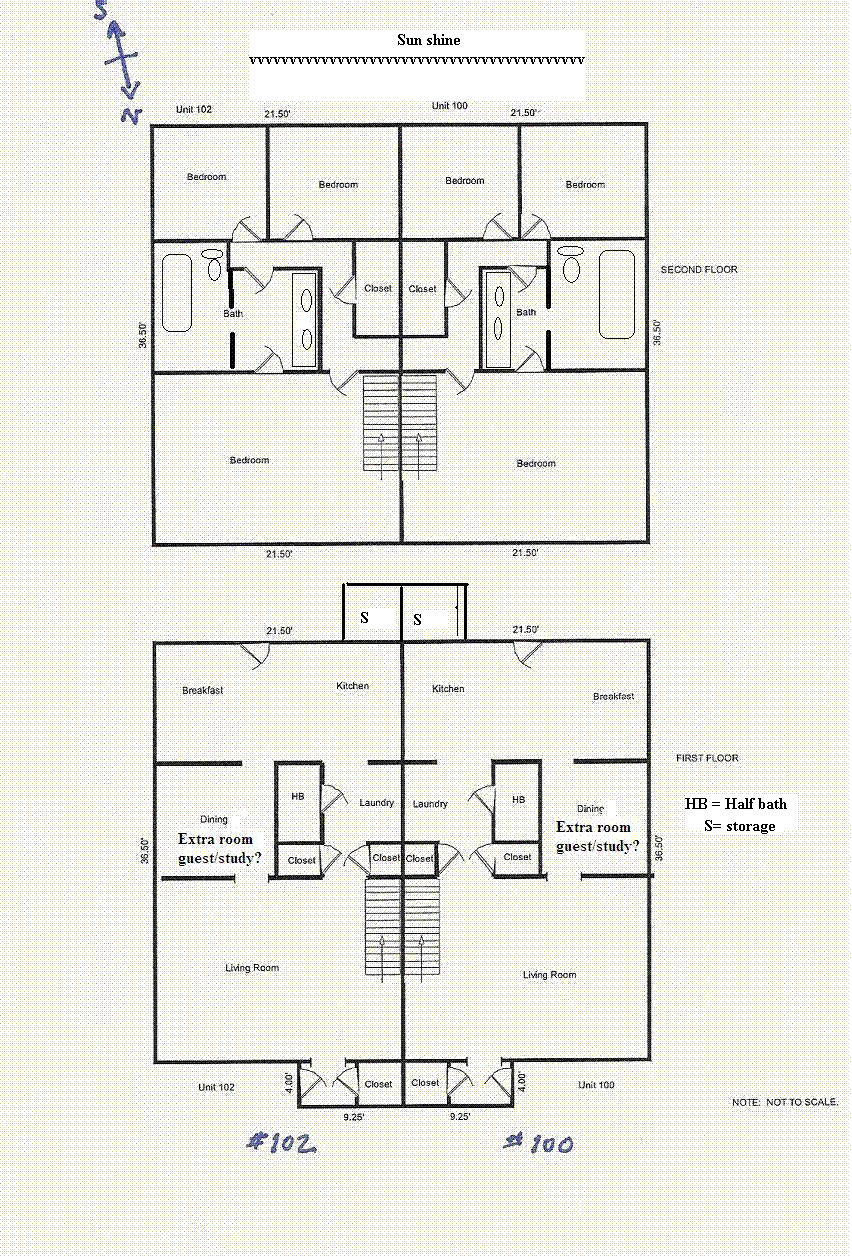
Longmeadow Duplex Floor Plans

Each unit has 3 -4 bedrooms. 1st floor study/extra bedroom.  (If this is not in focus, click here)